現代輕奢

現代輕奢

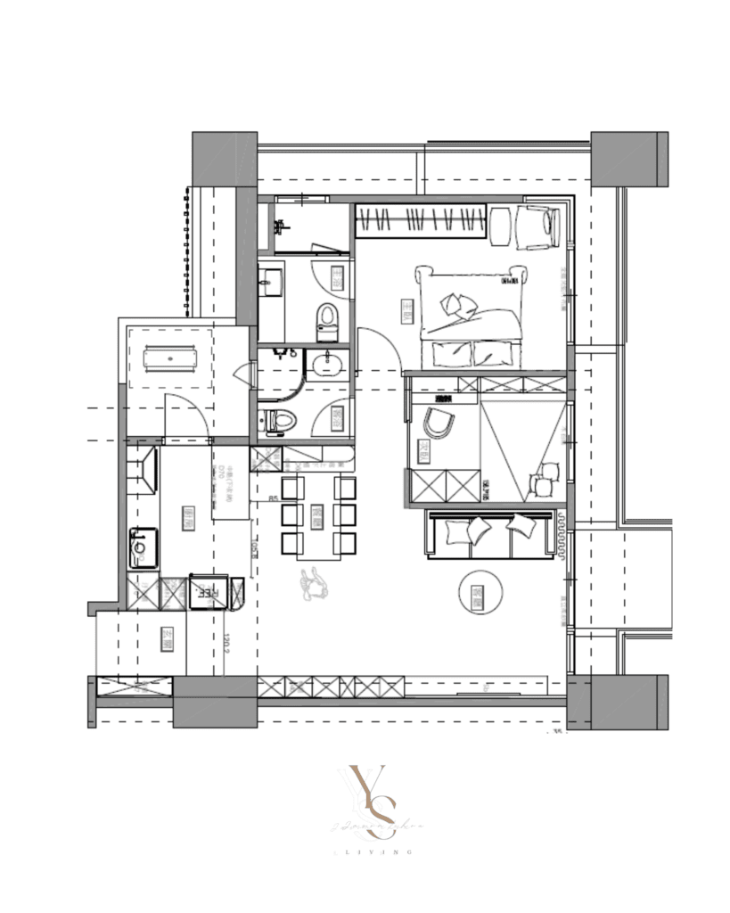
空間類型 :

新成屋設計

座落地點 :

新竹

設計坪數 :

18坪

執行預算 :

$65000/坪

執行範圍 :

玄關、客廳、餐廳、主臥床靠、小孩房局部

費用說明 :

上述金額含、裝潢工程、大理石材工程、木作費、系統櫃體、設計費 (不含冷氣空調、傢具配飾、窗簾)

「輕奢,不僅僅是風格,更是生活的態度。」

奢華與簡約的完美結合,在每一個細節中展現無與倫比的精緻品味。
從選用高品質的材質,到注重每一處細緻工藝,
我們致力於打造出一個既高雅又舒適的居住環境,
不僅滿足視覺上的美感,更帶來無可挑剔的生活體驗。

無論是大面積的開放空間,還是每一個小角落的細緻佈置,
都體現出我們對品質和設計的極致追求。

其他案例

奶油溫暖風

老屋改修 | 20坪

「柔霧光感,溫柔包覆,打造安心的生活居所」

質感現代風

新成屋設計 | 12.8坪

「理性收納,讓展示成為生活的一部分。」

無印奶油風

新成屋設計 | 18.5坪

「有些家,不需要太多裝飾,就已經很舒服了。」

現代簡約風

新成屋設計 | 18坪

「低調內斂,讓空間替生活說話。」

美式優雅風

新成屋設計 | 15坪

「美式優雅風,藏不住的氣質底蘊」

無印原木風

新成屋設計 | 16坪

「無印生活,簡約設計,專屬你的生活體驗」